
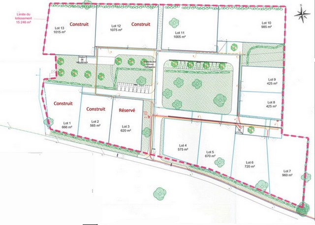
Dans un cadre verdoyant, à proximité du centre bourg, des terrains viabilisés, de 425 à 1 005 m², sont disponibles au prix de 15€ le m².
Vous pouvez obtenir tout renseignement à la mairie :
05 49 48 41 92
mairie@mazerolles.fr
Dans un cadre verdoyant, à proximité du centre bourg, des terrains viabilisés, de 425 à 1 005 m², sont disponibles au prix de 15€ le m².
Vous pouvez obtenir tout renseignement à la mairie :
05 49 48 41 92
mairie@mazerolles.fr